
Seismic & Structural Specialists
OSHPD OSP, AC156 Testing & PE-Stamped Anchor Calcs
California's seismic one-stop-shop for nonstructural components and non-building structures. HCAI/OSHPD OSP & OPM pre-approvals, ICC-ES AC156 shake table testing, and ASCE 7-22 anchor design — PE/SE stamped, quoted in 48 hours.
- IBC / CBC
- HCAI/OSHPD
- ASCE 7
- IEEE-693
- ICC-ES AC156
- Serving California & Nationwide
- Los Angeles office →
New: OSHPD OSP Certification — Complete California Hospital Equipment Guide
What we deliver
- PE & SE stamped anchor and vibration isolator calculations
- Design, detailing & fabrication for nonstructural components
- Patented seismic vibration isolators
- FEMA E-74 nonstructural risk assessments
- Shake table testing for design development
- IBC & HCAI/OSHPD equipment seismic certification (OSP/OPM)
- Mechanical/structural finite element analysis & 3-D CAD
Core Capabilities
A focused selection of our seismic and structural engineering services.

Full programs for design development and equipment qualification per ICC-ES AC156.

Equipment seismic certification including OSP/OPM approval for hospital projects.

Patented seismic vibration isolators with full PE/SE stamped analysis.

Risk assessments for existing facilities to reduce nonstructural seismic damage.

US Resiliency Council certified ratings to benchmark seismic performance.

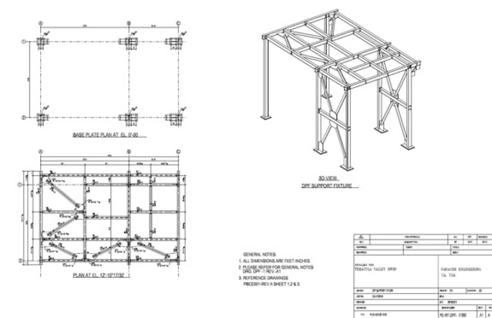
Seismic bracing, attachment support, and anchor design for equipment, non-building structures, and nonstructural components per ASCE 7.

Detailed 3D models and 2D fabrication drawings for support structures, fixtures, and seismic bracing assemblies.

Linear and non-linear FEA for stress, deformation, and seismic response of equipment and enclosures.

Field measurements and analysis of equipment-induced vibration with engineered mitigation solutions.
Engineering Resources
Deep technical guides on seismic anchor calculations, ASCE 7-22 Chapter 13, ACI 318-19 Chapter 17, and equipment anchorage workflows used by our PE/SE engineers.
Seismic Anchor Calculations
PE/SE stamped anchorage, bracing, and support calculations per IBC and ASCE 7 Chapters 13 & 15.
Read guideSeismic Bracing Design
PE/SE stamped seismic bracing for piping, ductwork, conduit, cable tray, and sprinklers per ASCE 7-22 §13.6 and NFPA 13.
Read guideASCE 7-22 Chapter 13 Guide
The new Fp equation explained — Hf, Rμ, CAR, and Ω0p factors for nonstructural components.
Read guideEquipment Anchorage Design
Step-by-step PE/SE workflow from Fp determination through stamped submittal.
Read guideAnchor Bolt Design Examples
Worked tension, shear, and combined-load examples per ACI 318-19 Chapter 17.
Read guideEngineering Calculation Tools
Online seismic anchor calculator, Fp worksheets, and code-reference cheat sheets.
Read guideCommon Anchorage Mistakes
Fifteen plan-check back-checks we see every month — and the code-compliant fixes.
Read guideLatest from the blog
New technical guides on ASCE 7-22, ACI 318-19 anchorage, HCAI/OSHPD preapprovals, and shake table testing.
AISC 360-22 Steel Connection Design and Shop Drawings: A Fabricator's Guide to Delegated Design
How AISC 360-22 Chapter J connection design, AISC 303 shop drawings, and AWS D1.1 welding combine in a delegated steel package — from shear tabs to brace gussets to base plates.
Read articleASCE 7-22 Chapter 15: Non-Building Structures — When You Leave Chapter 13 Behind
When an item is a Chapter 13 nonstructural component vs a Chapter 15 non-building structure under ASCE 7-22 — and how the design force changes between the two paths.
Read articleSeismic Bracing for Distribution Systems: Piping, Ductwork, Conduit, and Cable Tray under ASCE 7-22
When piping, ductwork, conduit, and cable tray require seismic bracing under ASCE 7-22 §13.6.5–13.6.7 — threshold rules, longitudinal vs transverse bracing, and the hospital I_p = 1.5 thresholds.
Read articleFrequently asked questions
Common questions about seismic certification, shake table testing, and PE/SE stamped calculations.
Let's discuss your project
Have a nonstructural component, certification, or testing need? Our team is ready to help.
